г.Ульяновск ул.К.Маркса, д.20
Описание объекта
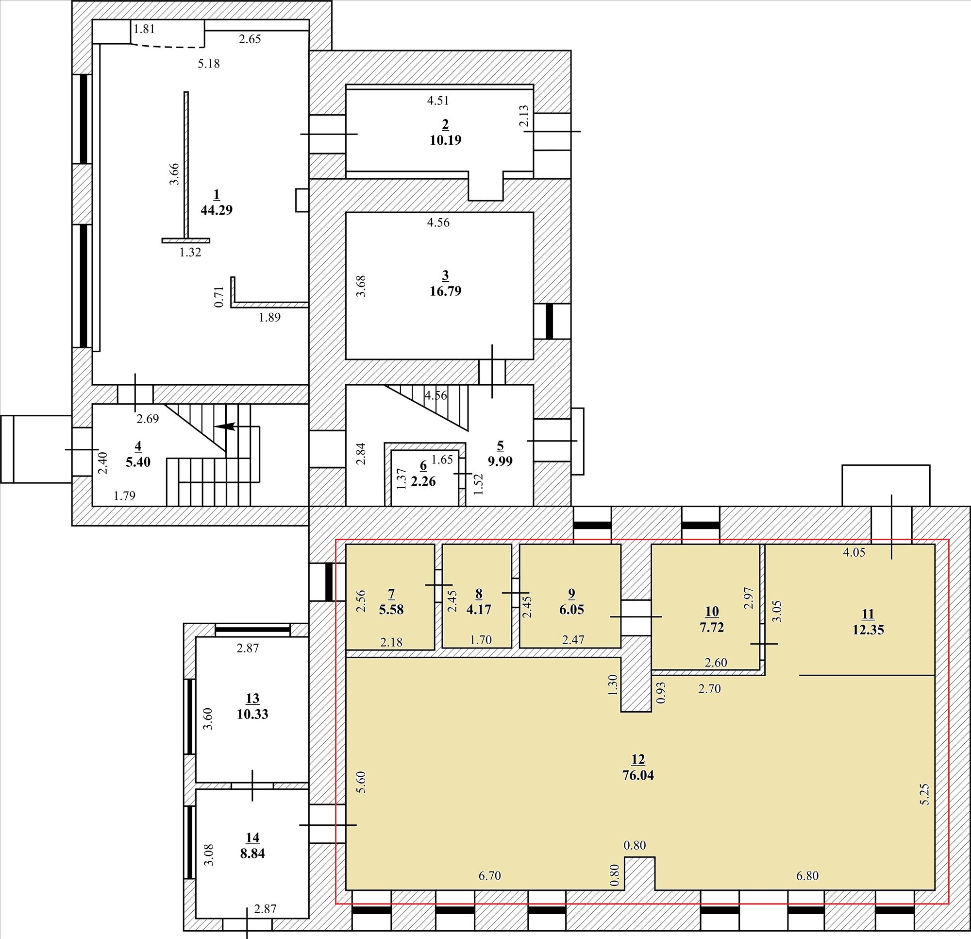
Первая линия, 1/2 этаж, прямой выход на ул.К.Маркса 112 кв.м. Торговый зал с минимально необходимыми подсобными помещениями и туалетом. Высокий пешеходный трафик. Собственная парковка – во дворе: бесплатная для арендаторов и их клиентов, во дворе платная круглосуточная стоянка. Двухэтажное кирпичное строение. Имеется подъезд с тыла здания для разгрузки товара. Особые возможности: Парковка в центре, Возможна организация летнего кафе во дворе Подвал под склад.
Подходит для: торговля
-
Хороший траффик
-
Есть внешняя реклама
-
Транспортная доступность
-
Парковка
Месторасположение объекта
| Спецификации: | |
|   |   |
| Общая площадь: | 112 кв. м |
| Земельный участок: | 1657 кв.м |
| Телефон: | имеется |
| Коммуникации: | ХВС+водонагреватель, канализация |
| Отопление: | центральное |
| Электроснабжение: | 25 кВт |
| Цена за кв.м.: | 1500 руб. |
| Отделка помещения: | |
|   |   |
| Потолок: | подвесной "Армстронг" |
| Стены: | окрашены |
| Пол: | линолеум |
| Общее состояние: | хорошее |
| Дополнительно: | высота потолка 2,65м.Частная парковка бесплатная. |